联系人:陈经理
手 机:15216812122
电 话:15000896443
地 址:上海市嘉定工业区叶城路912号J

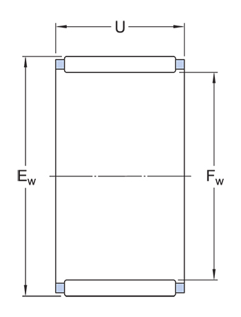
滚针轴承(needle bearing)是带圆柱滚子的滚子轴承,相对其直径,滚子既细又长。这种滚子称为滚针。尽管具有较小的截面,轴承仍具有较高的负荷承受能力,滚针轴承装有细而长的滚子(滚子直径D≤5mm,L/D≥2.5,L为滚子长度),因此径向结构紧凑,其内径尺寸和载荷能力与其它类型轴承相同时,外径最小,特别适用于径向安装尺寸受限制的支承结构。
根据使用场合不同,可选用无内圈的轴承或滚针和保持架组件,此时与轴承相配的轴颈表面和外壳孔表面直接作为轴承的内、外滚动表面,为保证载荷能力和运转性能与有套圈轴承相同,轴或外壳孔滚道表面的硬度,加工精度和表面质量应与轴承套圈的滚道相仿。此种轴承仅能承受径向载荷。
Copyright © 2023 上海盛博特机电科技有限公司 All Rights Reserved. 沪ICP备2023021132号-1